Last Updated: 2025-05-28
39-97 Carrville Road Condos
39 Carrville Road, Richmond Hill, ON
Starting From TBA
Overview
Pricing and Incentives
| Price Range | |
| 1 Bed Starting From | Register Now |
| 2 Bed Starting From | |
| Price Per Sqft | |
| Avg Price Per Sqft | |
| Pre-Con Avg Price Per Sq Ft | |
| Deposit Structure |
About 39-97 Carrville Road Condos Development
39-97 Carrville Road Condos is a new condo development that is currently in the pre-construction phase by Goldenville Development Inc., located at 39 Carrville Road, Richmond Hill, ON. 39-97 Carrville Road Condos offer a modern living experience with various unit sizes and top amenities. This project’s estimated completion date is still unknown.
Key Takeaways
- The 39 97 Carrville Road Condos feature modern architecture with a range of unit options, including one to three-bedroom layouts, and are designed to foster a vibrant mixed-use community.
- Goldenville Development aims to enhance urban living through innovative design and community-focused amenities, positioning the condos as a landmark development in Richmond Hill.
- The prime location of the condos offers excellent transit access, nearby attractions, and recreational facilities, providing residents with a balanced urban lifestyle.
Overview of 39 97 Carrville Road Condos
The 39 97 Carrville Road Condos, single-family homes, are a testament to urban chic living, characterized by their modern architecture and layered textures. This condo community aims to cater to a wide range of family sizes and preferences, with units ranging from one to three bedrooms.
Each condo features expansive outdoor balconies and terraces, providing an ideal space to enjoy the outdoors. The buildings at 39 97 Carrville Road consist of multiple stories, offering a variety of views and enhanced accessibility.
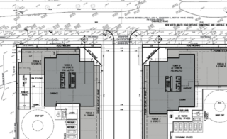
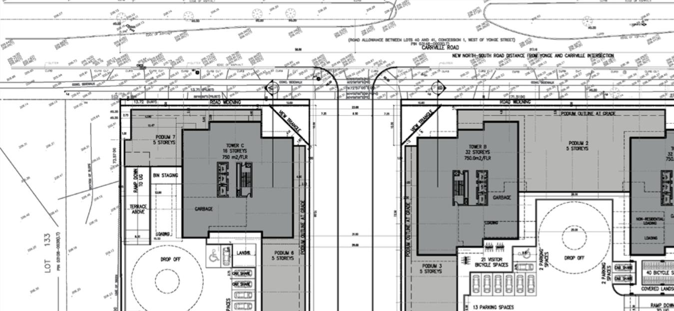
Beyond residential units, the project aims to create a vibrant mixed-use development with both residential and commercial spaces, enriching the community experience. Goldenville Development envisions constructing three buildings, comprising approximately 820 residential units, reflecting their commitment to promoting a lively urban lifestyle.
Located at 39-97 Carrville Rd, Richmond Hill, L4C 6E4, Canada, this development is set to become a significant landmark in the area. With its strategic location and well-thought-out design, the 39 97 Carrville Road Condos are poised to offer a perfect blend of comfort, convenience, and style.
Developer Background: Icon Architects
Icon Architects stands out in the architectural world for its hands-on approach, ensuring that every project receives meticulous attention from the initial design phase to construction completion. This method fosters strong client relationships and ensures that the final product meets the highest standards.
Their emphasis on collaboration integrates input from clients, consultants, community stakeholders, and partners, ensuring that each project is tailored to meet unique needs and location characteristics. The firm has earned multiple awards for design excellence, particularly in urban and condominium unit design.
Their projects are known for their multi-phase urban developments that combine residential units with commercial spaces, enhancing community interaction and fostering a vibrant living environment. Icon Architects’ commitment to excellence and innovation makes them the perfect partner for the 39 97 Carrville Road Condos.
Icon Architects’ track record of converting underused spaces into vibrant residential complexes showcases their innovative approach and commitment to quality. Their expertise and dedication to quality ensure that the condos at 39 97 Carrville Road will not only meet but exceed the expectations of future residents.
Goldenville Development’s Vision
Goldenville Development’s vision for the 39 97 Carrville Road Condos is rooted in innovation and community enhancement. The developer’s history of converting underused spaces into vibrant residential areas demonstrates their commitment to innovative design and community building.
This project is part of a broader trend in Richmond Hill, where residential developments are booming due to the increasing demand in the Greater Toronto Area. Situated in a designated intensification area, Carrville Road promotes further growth and development in the vicinity.
Goldenville Development aims to leverage this opportunity by creating a mixed-use development that meets the needs of modern urban living while enhancing the local community. The condos at 39 97 Carrville Road are designed to reflect Goldenville Development’s vision of promoting a vibrant urban lifestyle.
With their innovative approach and commitment to quality, this project is set to become a landmark development in Richmond Hill, attracting residents looking for a perfect blend of luxury, convenience, and community spirit.
Prime Location on Carrville Road
One of the most significant advantages of the 39 97 Carrville Road Condos is their prime location, which offers:
- A position on the south side of Carrville Road, between Yonge Street and Plaisance Road
- Easy access to major transit routes enhances connectivity for residents
- Proximity to Yonge Street, which improves access to public transport
- Convenient and efficient commuting options
The Sheppard-Yonge Subway station, a short walk from Hullmark Centre, makes public transportation easily accessible. For those who prefer to drive, Highway 401 is just minutes away, making travel around Toronto straightforward and hassle-free.
Carrville Road boasts a mix of retail and commercial developments, offering diverse shopping and dining options for residents. Besides urban conveniences, proximity to parks and recreational facilities on Carrville Road promotes an active lifestyle for residents.
The strategic location of the 39 97 Carrville Road Condos ensures that residents can enjoy the best of both worlds – the vibrancy of city life and the tranquility of suburban living. This combination significantly enhances the investment appeal of these condos.
Architectural Design and Layouts
The architectural design of the 39 97 Carrville Road Condos is a blend of modern style and sustainability. The development features sleek lines and contemporary finishes, reflecting a modern architectural style that appeals to today’s urban dwellers.
The project seeks to integrate modern architecture with green spaces, enhancing the aesthetic appeal and livability of the area. Goldenville Development is committed to sustainability, aiming to incorporate eco-friendly building practices in the Carrville Road project. The development comprises:
- Three buildings with heights of 32, 32, and 16 storeys, providing a variety of views and living experiences.
- A total of 820 residential units.
- 204 commercial units, creating a vibrant, mixed-use community.
The floor plans in the development cater to a range of buyers, with one, two, and three-bedroom units available. The unit layouts are designed to maximize space efficiency, featuring open-concept living areas that create a sense of spaciousness.
Many units also include balconies and terraces, providing outdoor living options that enhance the overall living experience. Condo interiors are fitted with high-quality finishes, including solid-core entry doors and modern lever hardware, adding a touch of elegance to each unit.
This attention to detail ensures that residents can enjoy a luxurious and comfortable living environment that meets contemporary lifestyle needs post-pandemic.
Amenities and Features
The 39 97 Carrville Road Condos are designed to offer a range of amenities that cater to the diverse needs of its residents. Fitness centers are a highly sought-after feature, providing essential exercise equipment to promote a healthy lifestyle.
Additionally, swimming pools enhance recreational opportunities and can be enjoyed by residents of all ages. Community centers serve as communal spaces where residents can gather for social events and meetings, fostering a sense of community.
Outdoor recreation areas enrich condo living by providing spaces for residents to exercise, socialize, and relax. Community gardens offer a unique feature, allowing residents to grow plants and vegetables together, promoting healthy living and social interaction.
Amenities that enhance community living include:
- Pet-friendly amenities, such as dog parks and washing stations, cater to residents with pets.
- Electric vehicle charging stations accommodate the growing number of residents with electric vehicles.
- Sustainability-focused amenities, such as recycling programs and solar energy, reflect the community’s commitment to eco-friendly living.
These amenities and features make the 39 97 Carrville Road Condos a highly desirable place to live, offering a balanced lifestyle that combines luxury, convenience, and sustainability.
Nearby Attractions and Facilities
Proximity to various nearby attractions and facilities enhances the appeal of the 39 97 Carrville Road Condos. Hullmark Centre serves as a prominent local attraction, contributing to the vibrancy of Richmond Hill.
The center features a mix of retail shops, dining options, and office spaces, enhancing the community experience and providing residents with convenient access to a range of services.
Located in a bustling area, residents can enjoy the convenience of having everything they need within easy reach. The combination of modern amenities and nearby attractions ensures that living at 39 97 Carrville Road is both enjoyable and practical.
Project Timeline and Completion Status
Currently in the pre-construction phase, the project at 39 97 Carrville Road marks the start of an exciting journey toward completion. Tracking the project timeline is crucial for keeping potential buyers and investors well-informed about the progress and future developments of the condos.
With the project still in its early stages, no specific completion date has been announced. However, future updates regarding milestones will be communicated as the project progresses through its phases.
Keeping updated on the project’s status will help interested parties make informed investment decisions.
Summary
In summary, the 39 97 Carrville Road Condos, single-family homes offer a compelling blend of modern design, luxurious amenities, and a prime location. With a strong vision from Goldenville Development and the expertise of Icon Architects, this project is set to become a landmark development in Richmond Hill.
The condos cater to a range of lifestyle needs, making them an attractive choice for families, professionals, and investors alike. As the project progresses, staying informed about its timeline status will be crucial for those interested in becoming part of this vibrant community.
The 39 97 Carrville Road Condos promise to deliver an exceptional living experience, making them a standout choice in the Greater Toronto Area’s real estate market.
Frequently Asked Questions
What types of units are available at 39 97 Carrville Road Condos?
The condos at 39 97 Carrville Road offer a range of units from one to three bedrooms, accommodating various family sizes and preferences.
Who is the developer behind the 39 97 Carrville Road Condos?
The developer behind the 39 97 Carrville Road Condos is Goldenville Development, with architectural design by Icon Architects.
What amenities can residents expect?
Residents can expect a range of amenities, including fitness centers, swimming pools, community centers, outdoor recreation areas, community gardens, pet-friendly facilities, and features that promote sustainability. These offerings enhance the living experience by providing both leisure and community engagement opportunities.
What is the current status of the project?
The project is currently in the pre-construction phase, and updates on milestones will be provided as it progresses.
Where is 39 97 Carrville Road located?
39-97 Carrville Road is located in Richmond Hill, Ontario, Canada, with convenient access to transit routes and local amenities.
Looking for new condominiums in Richmond Hill? Explore more here.
Read MoreResale Values & Trends
Average Resale Condo Sales Prices and Rental Prices by Year
↑ 0% (0 sales)
↑ 0% (0 rents)
Precondo Reviews
Precondo provides a detailed selection of new and pre-construction properties. Although we strive for accuracy, we are not liable for any errors or omissions in our content, nor for how it is used. Information is for reference only and may change without notice.
