Last Updated: 2025-09-08

16469 10 Side Road Townhomes

16469 10 Side Road, Halton Hills, ON

Price TBA

Overview

icon Occupancy:
tba
icon Suites:
470
icon Storeys:
N/A
icon Developer:
N/A

Pricing and Incentives

Price Range
1 Bed Starting From Register Now
2 Bed Starting From
Price Per Sqft
Avg Price Per Sqft
Pre-Con Avg Price Per Sq Ft
Deposit Structure

About 16469 10 Side Road Townhomes Development

16469 10 Side Road Townhomes is a new home pre-construction phase, located at 16469 10 Side Road, Halton Hills, ON. 16469 10 Side Road Townhomes offers a unique blend of modern living amenities and sustainable practices. This project’s estimated completion date is still unknown.

Key Takeaways

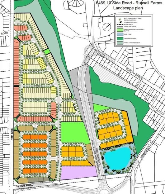
  • The 16469 10 Side Road Townhomes development in Halton Hills will feature 744 homes, including single-detached houses and townhouses across 53 hectares, fostering a diverse and vibrant community.
  • Conveniently located near major highways, the development enhances accessibility to the Greater Toronto Area while integrating essential amenities like retail spaces and neighbourhood parks to promote community living.
  • Sustainability is a key focus, with green infrastructure and energy-efficient homes designed to reduce environmental impact and improve residents’ quality of life through advanced technologies and community engagement.

Overview of 16469 10 Side Road Townhomes

The proposed development at 16469 10 Side Road in Halton Hills is set to become a vibrant residential community, featuring:

  • A mix of 744 homes, including single-detached houses and townhouses
  • Spanning 53 hectares
  • Offering a variety of housing options to cater to different lifestyle preferences
  • Fostering a sense of community among residents

Location and Accessibility

The location of 16469 10 Side Road significantly enhances its appeal as a residential development. Conveniently situated just 10 minutes from major highways 401 and 407, residents will enjoy easy access to key destinations across the Greater Toronto Area.

This strategic location allows for quick and hassle-free commutes to work, school, and leisure activities. The development is bordered by Tenth Line, 10 Side Road, Adamson Street, and nearby residences on Guelph Street, offering a well-connected network of roads for effortless navigation.

The proximity to these main roads not only enhances accessibility but also places residents within a thriving community that has experienced significant growth. From 2018 to 2021, Halton Hills saw a population increase of about 9%, making it one of the fastest-growing areas in Ontario.

An interactive map detailing the location and surrounding amenities offers a thorough overview for those looking to explore the area further. It simplifies the process of request additional information via email, check site conditions, and finding optimal routes for daily commutes.

With such excellent accessibility, 16469 10 Side Road is ideally located for modern, convenient living.

Property Types and Layouts

The development at 16469 10 Side Road provides a diverse selection of housing types to meet various preferences and needs. Prospective residents can choose from single-detached homes and townhouses, each designed to provide comfort and style.

Whether you’re a growing family or a young professional, this sign variety ensures a home that fits your lifestyle. The townhomes feature several unique designs to cater to different tastes.

The development includes back-to-back townhouses and dual-frontage homes, providing options that maximize space and functionality. These thoughtfully planned layouts build to meet the diverse needs of today’s homeowners, combining aesthetic appeal with practical living spaces.

The mix of property types, including potential rental properties and condos, aims to create a balanced community where investors can find their ideal mixed home. This blend of housing options not only supports a diverse population but also fosters a vibrant, inclusive neighbourhood, providing a chance for all to thrive.

Modern Living Amenities

The 16469 10 Side Road development excels in providing convenience, comfort, and community. The community features 744 residences, including 274 single-detached homes and 470 townhouses, offering a variety of living options.

Integrating green infrastructure and a variety of housing types enhances the quality of life, blending nature and modernity harmoniously. The development also includes a range of amenities that cater to the diverse needs of its residents on a date.

Every aspect of daily life is considered, from neighbourhood public areas to on-site retail spaces. These developments offer convenience while promoting community and well-being in this article.

Additionally, it is important to list the various details that expand the living capacity experience.

Neighbourhood Parks

One of the standout features of the 16469 10 Side Road development is the inclusion of two neighbourhood public areas. The public areas are designed to enhance residents’ quality of life by offering spaces for recreation, relaxation, and community gatherings.

With amenities such as children’s playgrounds, walking trails, and picnic areas, these public areas cater to the recreational needs of residents of all ages. Beyond leisure, the two public areas promote community engagement and foster a sense of belonging among people and residents.

Whether it’s a casual stroll along the walking trails in July, a family picnic, or children playing on the playgrounds, these public areas offer numerous opportunities for social interactions and society bonding. This focus on neighbourhood spaces reflects the broader aim of the development to create a vibrant and cohesive neighbourhood.

Situated within Halton Hills, these public places also contribute to the overall appeal of the place. Known for its green spaces and social spirit, Halton Hills is an ideal location for families and individuals seeking a balanced lifestyle. T

hese public places further enhance the attractiveness of 16469 10 Side Road as a place to call home.

Retail Space and Services

The inclusion of retail space within the 16469 10 Side Road development significantly enhances the convenience of modern living. On-site retail spaces offer essential services and shopping options, ensuring residents have everything they need within easy reach of the inventory.

These retail areas are designed to cater to the daily needs of residents in the town, featuring essential service such as grocery stores and pharmacies. This minimizes the need for long-distance travel for everyday necessities, simplifying life.

Cafes and other retail outlets further enhance the common social and society atmosphere, providing zones for residents to meet, relax, and enjoy their low sort deal time while buying. The integration of commercial spaces within the residential development is a practical solution that benefits both residents and businesses.

For residents, it provides a high level of convenience and accessibility. For businesses, it provides a ready market within close proximity.

This symbiotic relationship enhances the overall living experience and contributes to the vibrancy and sustainability of the society.

Sustainable Community Development

Sustainability is a fundamental aspect of the 16469 10 Side Road development. An environmental assessment is currently being conducted by Halton Region to ensure that the project adheres to high sustainability standards.

This commitment is evident in various aspects of the project, from society engagement to advanced technologies and amenities. Community involvement is vital for sustainable innovation.

Engaging local residents in the planning process allows the innovation to better reflect their needs and preferences, leading to improved sustainability outcomes. This sense of ownership and involvement not only enhances the decision-making quality but also fosters a stronger, more cohesive society.

Green Infrastructure

Green infrastructure is a cornerstone of the 16469 10 Side Road development, aiming to manage natural resources efficiently while providing ecological benefits. This includes the creation of public zones and green spaces that contribute to society health by encouraging outdoor activities and social interactions among residents on land.

Managing green infrastructure involves assessing the risk and lifecycle of natural assets to maximize their benefits. Implementing green infrastructure improves water management, reduces urban heat effects, and enhances urban resilience.

These benefits contribute to environmental sustainability and improve residents’ quality of life. The public zones within the neighbourhood serve as essential green spaces for relaxation and recreation.

They promote physical fitness and social interaction, making them valuable assets for residents. The thoughtful integration of green infrastructure ensures that the society remains vibrant and sustainable for years to come.

Energy-Efficient Homes

Energy efficiency is a prominent feature of the homes at 16469 10 Side Road. Equipped with advanced insulation and energy-efficient appliances, these homes minimize environmental impact and reduce utility costs.

This focus on energy efficiency reflects the development’s commitment to sustainability and modern living, making each unit a model of eco-friendly design and showcasing the benefits of energy-efficient units.

Energy-efficient homes typically feature high-performing insulation and ENERGY STAR certified appliances to significantly reduced energy consumption. These features contribute to a greener environment and offer practical benefits for homeowners, including low power bills and increased comfort.

Incorporating energy-efficient technologies in these homes ensures residents enjoy a excellent quality of life while contributing to environmental sustainability year. This forward-thinking approach to home design demonstrates the development’s commitment to creating a sustainable and comfortable living environment for all residents.

Summary

In summary, the 16469 10 Side Road development in Halton Hills offers a unique blend of modern living amenities and sustainable practices. With a diverse variety of housing options, convenient commercial spaces, and social-focused green infrastructure, this property promises to enhance the quality of life for its residents.

The commitment to sustainability and social engagement further underscores the appeal of this vibrant, inclusive neighbourhood. Consider making 16469 10 Side Road your new home, where modern living meets social spirit and environmental responsibility.

Frequently Asked Questions

What types of homes are available at 16469 10 Side Road?

At 16469 10 Side Road, you will find a variety of single-detached homes and townhouses, catering to a range of lifestyle preferences. This variety allows residents to choose a home that best suits their needs.

How accessible is the location of 16469 10 Side Road?

The location of 16469 10 Side Road is highly accessible, being just 10 minutes from major highways 401 and 407, facilitating easy travel to key destinations.

What amenities are included in the development?

It includes neighbourhood parks, on-site commercial spaces, and modern living amenities to enhance residents’ quality of life.

How is the development addressing sustainability?

It is effectively addressing sustainability through the incorporation of green infrastructure, energy-efficient homes, and a thorough environmental assessment to meet sustainability standards.

What community features are available in the neighbourhood parks?

The neighbourhood parks feature amenities like children’s playgrounds, walking trails, and picnic areas, which enhance social engagement and recreational opportunities.

Stay tuned for  new pre-construction condos in Halton Hills.

Read More

Precondo Reviews

0
Pricing
0%
Location
0%
Builder
0%
Leave Your Reviews Here

Your email address will not be published. Required fields are marked *


Pricing
Location
Builder

*

Precondo provides a detailed selection of new and pre-construction properties. Although we strive for accuracy, we are not liable for any errors or omissions in our content, nor for how it is used. Information is for reference only and may change without notice.

Reveal Floor Plans & Pricing

Instant Price List & Sales Info Package

  • Hidden

Map Location

Book an Appointment